松江市の賃貸・不動産情報|有限会社朝日住宅 > (賃貸)路線・駅から探す > JR山陰本線 > 松江駅 > フェリシード

フェリシード

フェリシード

所在地 交通 建物
島根県松江市西津田4丁目9-44

山陰本線松江」駅 徒歩26分

「津田明神入口」バス停下車 徒歩6分

築13年
2階建
軽量鉄骨

物件情報

周辺施設

【外観】 | フェリシード

※写真や図と実際の現状とが異なる場合は現状を優先させていただきます

  • 【外観】 | フェリシード
  • 【外観】 | フェリシード
  • 【外観】 | フェリシード
  • 【外観パース】 | フェリシード
  • 【その他共用部分】 | フェリシード
  • 【駐車場】 | フェリシード
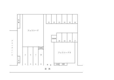
  • 【区画図】 | フェリシード

※ご覧になりたい写真をクリックすると
拡大されて表示されます。

コメント【外観】

情報の見方

フェリシード の物件概要

【アパート】

所在地 島根県松江市西津田4丁目9-44
交通
  • 山陰本線松江」駅 徒歩26分
  • 「津田明神入口」バス停下車 徒歩6分
賃料 6.5万円 管理費・共益費 2,000円
面積 40.48㎡ 築年月(築年数) 2012年 8月 ( 築13年 )
種別/構造 アパート / 軽量鉄骨 階建 2階建
取扱会社
  • 有限会社朝日住宅 賃貸仲介専門店
  • 島根県松江市西津田5丁目2-20 
  • TEL:0852-67-7321
  • 島根県知事 (6) 第930号
  • (社)島根県宅地建物取引業協会会員、 (社)島根県宅地建物取引業保証協会会員

※地図上に表示される物件の位置は付近住所に所在することを表すものであり、実際の物件所在地とは異なる場合がございます。

フェリシード へのお問い合わせは 有限会社朝日住宅 賃貸仲介専門店まで

0852-67-7321

〒690-0017

島根県松江市西津田5丁目2-20 

9:30~17:30  定休日:水曜日

お問い合わせ 来店予約する

フェリシードの空室情報

所在階 賃料 管理費・共益費 敷金/礼金/保証金/償却/敷引 間取り 面積 詳細 検討リスト
1階 6.5万円 2,000円 0ヶ月/ 1ヶ月/ -/ -/ - 1LDK
40.48㎡ 詳細を見る 追加する

フェリシードへのお問い合わせ

必要項目の入力

0/0
必須項目完了

確認画面へ
お進み下さい

0/0
必須項目完了

確認画面へ
お進み下さい

必須

お名前

必須

メールアドレス

任意

内容

【フェリシードへのお問い合わせ】

利用規約及びプライバシーポリシーを必ずお読みください。左記内容に同意いただいた場合は、確認画面へお進み下さい。

未入力項目があります

▼ご希望の物件をお探しします
物件リクエスト

おすすめ物件

エルスタンザの画像

エルスタンザ

島根県松江市西嫁島3丁目

山陰本線「乃木」駅 徒歩6分

築3年

ブルーメンハイムの画像

ブルーメンハイム

島根県松江市上乃木2丁目

山陰本線「乃木」駅 徒歩20分

築26年

上乃木6丁目戸建の画像

上乃木6丁目戸建

島根県松江市上乃木6丁目

山陰本線「松江」駅 徒歩34分

築1年

ウェル・アポインテッドの画像

ウェル・アポインテッド

島根県松江市西津田4丁目

山陰本線「松江」駅 徒歩21分

築23年

会社概要

会社画像
有限会社朝日住宅 賃貸仲介専門店
  • 〒690-0017
  • 島根県松江市西津田5丁目2-20 
  • TEL/0852-67-7321
  • FAX/0852-67-7322
  • 島根県知事 (6) 第930号

トップへ戻る

来店予約

LINEで簡単お問い合わせ